







PL-61002 Penny Barndominium House Plan
PL-61002 Penny Barndominium House Plan
- 3200 Heated square feet
- 40x50 living space dimension
- 1200 square feet attached garage
- 5 bedrooms
- 2 bathrooms
- 1 Story
- Open Concept
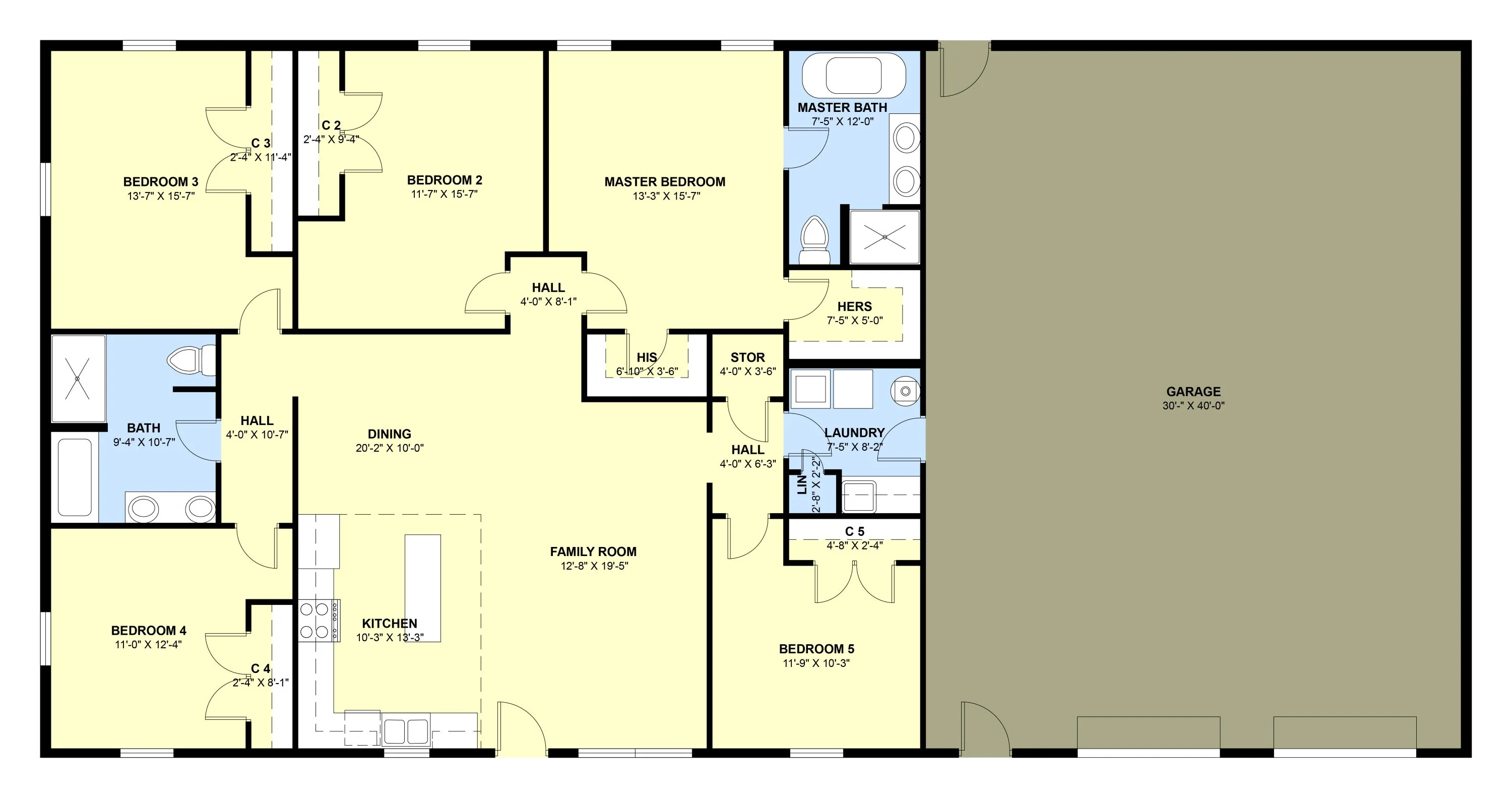
- The Penny barndominium house plan is 3200 heated square feet and features 5 bedrooms and 2 bathrooms with an attached 1200 square foot garage.
- As you enter this house plan you are greeted into a large family room, dining room, and kitchen area.
- The kitchen is large and great for entertaining, especially with the large center island.
- The master bedroom is spacious with an ensuite bathroom, and his and her closets.
- With 4 additional bedrooms, there is plenty of room for other members of the family and even guests to stay. There is a shared bathroom that is found next to bedrooms 3 and 4.
- As you enter through the large garage you will find yourself in the laundry room to clean up after a long day in the yard.
What's included in PL-61002:
Elevations - Front, Back, Left Side, Right Side
Detailed Floor Plan
Electrical Plan
Flooring Plan
Ceiling Joist Plan
Roof Plan
Plumbing Plan
Foundation Plan
For more barndominium floor plans, check out our complete collection of 5 bedroom barndominium floor plans.
Need to make changes? Submit a modification request using the button that says Modify This Plan . We will get you a free price quote within 72 hours
Original: $1,349.99
-70%$1,349.99
$405.00Product Information
Product Information
Shipping & Returns
Shipping & Returns
Description
PL-61002 Penny Barndominium House Plan
- 3200 Heated square feet
- 40x50 living space dimension
- 1200 square feet attached garage
- 5 bedrooms
- 2 bathrooms
- 1 Story
- Open Concept
- The Penny barndominium house plan is 3200 heated square feet and features 5 bedrooms and 2 bathrooms with an attached 1200 square foot garage.
- As you enter this house plan you are greeted into a large family room, dining room, and kitchen area.
- The kitchen is large and great for entertaining, especially with the large center island.
- The master bedroom is spacious with an ensuite bathroom, and his and her closets.
- With 4 additional bedrooms, there is plenty of room for other members of the family and even guests to stay. There is a shared bathroom that is found next to bedrooms 3 and 4.
- As you enter through the large garage you will find yourself in the laundry room to clean up after a long day in the yard.
What's included in PL-61002:
Elevations - Front, Back, Left Side, Right Side
Detailed Floor Plan
Electrical Plan
Flooring Plan
Ceiling Joist Plan
Roof Plan
Plumbing Plan
Foundation Plan
For more barndominium floor plans, check out our complete collection of 5 bedroom barndominium floor plans.
Need to make changes? Submit a modification request using the button that says Modify This Plan . We will get you a free price quote within 72 hours























