



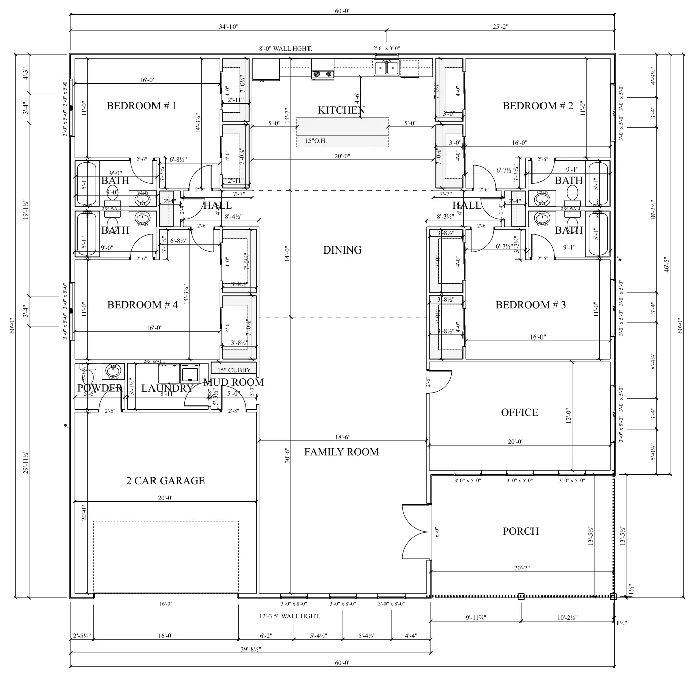
PL-60803 Penelope Barndominium House Plan
PL-60803 Penelope Barndominium House Plan
- 2926 Heated square feet
- 60x60 living space dimension
- 424 square feet attached garage
- 4 bedrooms
- 4.1 bathrooms
- 1 Story
- Mudroom
- Office
- Open Concept
- Porch
- The Penelope barndominium house plan is 2926 heated square feet and features 4 bedrooms, 4 full bathrooms, and 1 1/2 bathrooms. Attached to the home is a 424-square-foot garage.
- As you enter this spacious floor plan you immediately notice an abundance of space in the main living area of the home thanks to the open-concept design.
- The kitchen is spacious with a nice size island in the middle perfect for prep and serving.
- What is unique about this barndominium house plan is that there are four generously sized bedrooms, each accompanied by its own private bathroom, and two nice-sized closets.
- This home also has a nice office perfect for working from home, doing homework for the kids, or managing the household budget.
- Just off the garage you will find an attached half bathroom perfect for working outside or in the garage without having to come through the home to use the facilities.
What's included in PL-60803:
Cover Sheet
Detailed Floor Plan Dimensions
Four Elevations - Front, Back, Left Side, Right Side
Electrical Plan
Plumbing Plan
HVAC Plan
Roof Framing Plan
Foundation Plan
Wall Section
For more barndominium floor plans, check out our complete collection of 4 bedroom barndominium floor plans.
Need to make changes? Submit a modification request using the button that says Modify This Plan . We will get you a free price quote within 72 hours
Original: $849.99
-70%$849.99
$255.00Product Information
Product Information
Shipping & Returns
Shipping & Returns
Description
PL-60803 Penelope Barndominium House Plan
- 2926 Heated square feet
- 60x60 living space dimension
- 424 square feet attached garage
- 4 bedrooms
- 4.1 bathrooms
- 1 Story
- Mudroom
- Office
- Open Concept
- Porch
- The Penelope barndominium house plan is 2926 heated square feet and features 4 bedrooms, 4 full bathrooms, and 1 1/2 bathrooms. Attached to the home is a 424-square-foot garage.
- As you enter this spacious floor plan you immediately notice an abundance of space in the main living area of the home thanks to the open-concept design.
- The kitchen is spacious with a nice size island in the middle perfect for prep and serving.
- What is unique about this barndominium house plan is that there are four generously sized bedrooms, each accompanied by its own private bathroom, and two nice-sized closets.
- This home also has a nice office perfect for working from home, doing homework for the kids, or managing the household budget.
- Just off the garage you will find an attached half bathroom perfect for working outside or in the garage without having to come through the home to use the facilities.
What's included in PL-60803:
Cover Sheet
Detailed Floor Plan Dimensions
Four Elevations - Front, Back, Left Side, Right Side
Electrical Plan
Plumbing Plan
HVAC Plan
Roof Framing Plan
Foundation Plan
Wall Section
For more barndominium floor plans, check out our complete collection of 4 bedroom barndominium floor plans.
Need to make changes? Submit a modification request using the button that says Modify This Plan . We will get you a free price quote within 72 hours























