







LP-2804 Legg Barndominium House Plans
You can also order this plan flipped horizontally at no additional charge! Checkout now.
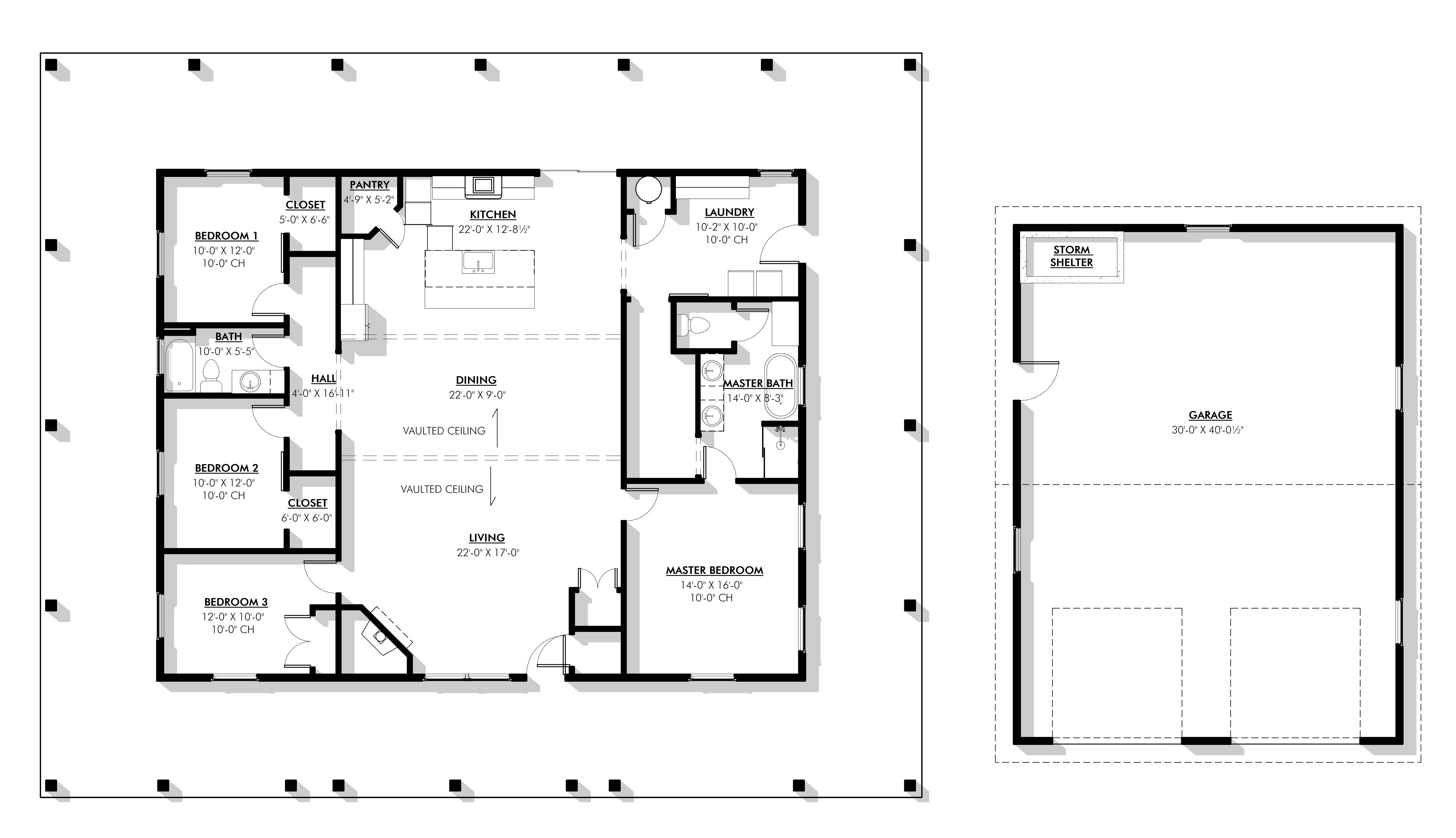
- 2000 Heated square feet
- 40x50 living space dimension
- 1200 square feet detached 2 car garage
- 4 bedrooms
- 2 bathrooms
- 1 Story
- Open Concept
- The Legg Barndominium house plan is 2000 heated square feet and features 4 bedrooms and 2 bathrooms.
- You will love the 1200 square feet detached garage that offers plenty of room for parking your vehicles as well as storage, but the feature you will love the most is the storm shelter that gives you peace of mind during every severe weather storm.
- This house plan is a lovely open concept so that the whole family feels connected when in the living room, dining room, and kitchen. The vaulted ceilings allow this area to feel even more grand.
- The kitchen is spacious with a nice size island that allows for more storage and prep. Located in the corner of the kitchen is a moderate-sized pantry.
- In this Legg Barndominium house plan, all the bedrooms and laundry room offer 10-foot ceilings which makes the home feel even more spacious.
- The master bedroom is a nice size with an ensuite bathroom and a walk-in closet that leads to the laundry room.
- Located on the other side of the house are three additional bedrooms that share one common bathroom.
What's included in LP-2804:
Cover Page
General Layout
Dimensional Layout
Electrical Layout
Front and Rear Elevations
Right and Left Elevations
Detail Views
For more barndominium floor plans, check out our complete collection of 4 bedroom barndominium floor plans.
Need to make changes? Submit a modification request using the button that says Modify This Plan . We will get you a free price quote within 72 hours
Original: $849.99
-70%$849.99
$255.00Product Information
Product Information
Shipping & Returns
Shipping & Returns
Description
LP-2804 Legg Barndominium House Plan
You can also order this plan flipped horizontally at no additional charge! Checkout now.
- 2000 Heated square feet
- 40x50 living space dimension
- 1200 square feet detached 2 car garage
- 4 bedrooms
- 2 bathrooms
- 1 Story
- Open Concept
- The Legg Barndominium house plan is 2000 heated square feet and features 4 bedrooms and 2 bathrooms.
- You will love the 1200 square feet detached garage that offers plenty of room for parking your vehicles as well as storage, but the feature you will love the most is the storm shelter that gives you peace of mind during every severe weather storm.
- This house plan is a lovely open concept so that the whole family feels connected when in the living room, dining room, and kitchen. The vaulted ceilings allow this area to feel even more grand.
- The kitchen is spacious with a nice size island that allows for more storage and prep. Located in the corner of the kitchen is a moderate-sized pantry.
- In this Legg Barndominium house plan, all the bedrooms and laundry room offer 10-foot ceilings which makes the home feel even more spacious.
- The master bedroom is a nice size with an ensuite bathroom and a walk-in closet that leads to the laundry room.
- Located on the other side of the house are three additional bedrooms that share one common bathroom.
What's included in LP-2804:
Cover Page
General Layout
Dimensional Layout
Electrical Layout
Front and Rear Elevations
Right and Left Elevations
Detail Views
For more barndominium floor plans, check out our complete collection of 4 bedroom barndominium floor plans.
Need to make changes? Submit a modification request using the button that says Modify This Plan . We will get you a free price quote within 72 hours























