









SV-5505-W Waters Barndominium House Plan
SV-5505-W Waters Barndominium House Plan
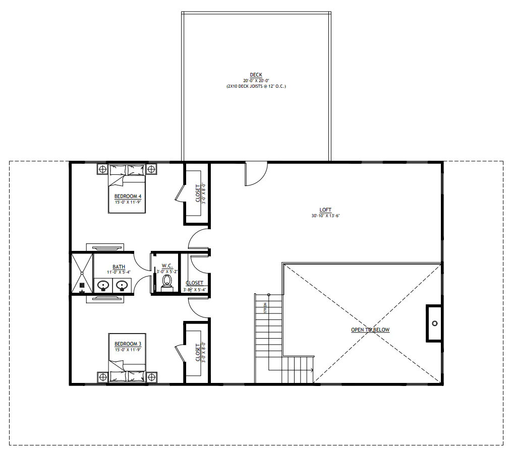
About this barndominium house plan:
- 2,608 Heated Sq Ft
- 4 bedrooms
- 3 bathrooms
- Open Concept
- Two Story
- J&J Bathroom
- Mudroom/Laundry
- Rear porch
- Rear Deck
- Wraparound porch
- A versatile two-level layout offering 2,608 square feet of conditioned space.
- Four bedrooms are distributed across two floors—balancing privacy and accessibility, with a Jack & Jill bath connecting two secondary rooms.
- A practical entry zone streamlines household tasks and keeps the main living areas clean and organized.
- Dual outdoor zones at the back of the home offer shaded lounging and open-air entertaining—perfect for morning coffee or sunset gatherings.
- A full-perimeter porch adds architectural charm and breezy transitions—enhancing curb appeal and outdoor living from every angle.
What's included in SV-5505-W:
Cover Page
First Floor Plan
Second Floor Plan
Roof Plan
Elevations
First Floor Electrical Plan
Second Floor Electrical Plan
First Floor Plumbing Plan
Second Floor Plumbing Plan
First Floor HVAC Plan
Second Floor HVAC Plan
Roof Framing Plan
Foundation Plan
Foundation Detail
Interior Bearing Footing
C-Typical Column Detail
Wall Section
For more barndominium floor plans, check out our complete collection of 4-bedroom barndominium floor plans.
Need to make changes? Submit a modification request using the button that says Modify This Plan. We will get you a free price quote within 72 hours.
Original: $849.99
-70%$849.99
$255.00Product Information
Product Information
Shipping & Returns
Shipping & Returns
Description
SV-5505-W Waters Barndominium House Plan
About this barndominium house plan:
- 2,608 Heated Sq Ft
- 4 bedrooms
- 3 bathrooms
- Open Concept
- Two Story
- J&J Bathroom
- Mudroom/Laundry
- Rear porch
- Rear Deck
- Wraparound porch
- A versatile two-level layout offering 2,608 square feet of conditioned space.
- Four bedrooms are distributed across two floors—balancing privacy and accessibility, with a Jack & Jill bath connecting two secondary rooms.
- A practical entry zone streamlines household tasks and keeps the main living areas clean and organized.
- Dual outdoor zones at the back of the home offer shaded lounging and open-air entertaining—perfect for morning coffee or sunset gatherings.
- A full-perimeter porch adds architectural charm and breezy transitions—enhancing curb appeal and outdoor living from every angle.
What's included in SV-5505-W:
Cover Page
First Floor Plan
Second Floor Plan
Roof Plan
Elevations
First Floor Electrical Plan
Second Floor Electrical Plan
First Floor Plumbing Plan
Second Floor Plumbing Plan
First Floor HVAC Plan
Second Floor HVAC Plan
Roof Framing Plan
Foundation Plan
Foundation Detail
Interior Bearing Footing
C-Typical Column Detail
Wall Section
For more barndominium floor plans, check out our complete collection of 4-bedroom barndominium floor plans.
Need to make changes? Submit a modification request using the button that says Modify This Plan. We will get you a free price quote within 72 hours.






















