






SV-30020 Cooper Custom Home Plan
SV-30020 Cooper Custom Home Plan
About this custom home plan:
- 4071 Heated Square Feet
- 3 Bedrooms
- 4.2 Bathrooms
- Two Story
- Open concept
- Study
- Foyer
- Mudroom
- Bonus room
- Storage room
- Mech room
- Tool room
- Wraparound porch
- 876 Sq Ft Garage
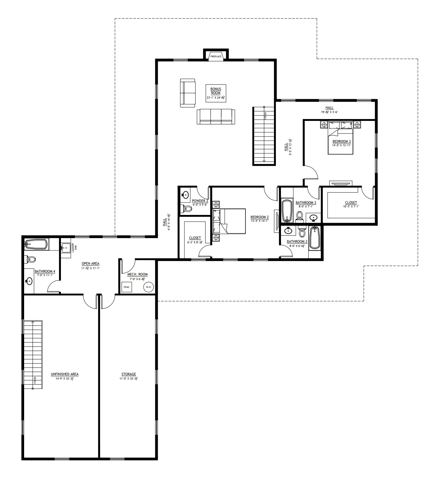
- A spacious 4,071 sq ft two-story layout designed for luxury living, generous gathering areas, and plenty of personal space.
- Three well-appointed bedrooms, including a private master suite on the main floor and two bedrooms upstairs—each with its own full bathroom for comfort and convenience.
- Four full bathrooms plus two half baths provide exceptional convenience for family, guests, and everyday living.
- A secluded study that leads to the master bedroom—perfect for a quiet office, reading retreat, or private workspace.
- The second floor includes a versatile bonus room, dedicated storage room, and a mechanical room to keep the home organized and running smoothly.
- A charming wraparound porch offering beautiful outdoor living, shade, and the perfect setting for relaxing or entertaining.
- A spacious 876 sq ft three-car garage complete with a dedicated tool room—ideal for storage, projects, and hobby space.
What's included in SV-30020:
Cover Page
First Floor Plan
Second Floor Plan
Roof Plan
Front & Rear Elevation
Right & Left Elevation
First Floor Electrical Plan
Second Floor Electrical Plan
First Floor Plumbing Plan
Second Floor Plumbing Plan
First Floor HVAC Plan
Second Floor HVAC Plan
Roof Framing Plan
First Floor Wall Framing Plan
Second Floor Wall Framing Plan
First Floor Ceiling Joist Plan
Second Floor Ceiling Joist Plan
Foundation Plan
Wall Section
Section A-A and Section B-B
Typical Framing Details-1
Typical Framing Details-2
Typical Framing Details-3
For more barndominium floor plans, check out our complete collection of 4-bedroom barndominium floor plans.
Need to make changes? Submit a modification request using the button that says Modify This Plan. We will get you a free price quote within 72 hours.
Original: $1,499.99
-70%$1,499.99
$450.00Product Information
Product Information
Shipping & Returns
Shipping & Returns
Description
SV-30020 Cooper Custom Home Plan
About this custom home plan:
- 4071 Heated Square Feet
- 3 Bedrooms
- 4.2 Bathrooms
- Two Story
- Open concept
- Study
- Foyer
- Mudroom
- Bonus room
- Storage room
- Mech room
- Tool room
- Wraparound porch
- 876 Sq Ft Garage
- A spacious 4,071 sq ft two-story layout designed for luxury living, generous gathering areas, and plenty of personal space.
- Three well-appointed bedrooms, including a private master suite on the main floor and two bedrooms upstairs—each with its own full bathroom for comfort and convenience.
- Four full bathrooms plus two half baths provide exceptional convenience for family, guests, and everyday living.
- A secluded study that leads to the master bedroom—perfect for a quiet office, reading retreat, or private workspace.
- The second floor includes a versatile bonus room, dedicated storage room, and a mechanical room to keep the home organized and running smoothly.
- A charming wraparound porch offering beautiful outdoor living, shade, and the perfect setting for relaxing or entertaining.
- A spacious 876 sq ft three-car garage complete with a dedicated tool room—ideal for storage, projects, and hobby space.
What's included in SV-30020:
Cover Page
First Floor Plan
Second Floor Plan
Roof Plan
Front & Rear Elevation
Right & Left Elevation
First Floor Electrical Plan
Second Floor Electrical Plan
First Floor Plumbing Plan
Second Floor Plumbing Plan
First Floor HVAC Plan
Second Floor HVAC Plan
Roof Framing Plan
First Floor Wall Framing Plan
Second Floor Wall Framing Plan
First Floor Ceiling Joist Plan
Second Floor Ceiling Joist Plan
Foundation Plan
Wall Section
Section A-A and Section B-B
Typical Framing Details-1
Typical Framing Details-2
Typical Framing Details-3
For more barndominium floor plans, check out our complete collection of 4-bedroom barndominium floor plans.
Need to make changes? Submit a modification request using the button that says Modify This Plan. We will get you a free price quote within 72 hours.




















