




SV-30013 Shelby Custom Home Plan
SV-30013 Shelby Custom Home Plan
About this custom home plan:
- 1850 Heated Square Feet
- 2 Bedrooms
- 2.1 Bathrooms
- Single Story
- Open concept
- Foyer
- Study/Library
- Rear Porch
- Breezeway
- Guest House with Office Nook
- 441 Sq Ft Garage
- A beautifully planned 1,850 sq ft layout split between a main home and a private guest house for flexible, comfortable living.
- The main home features a spacious bedroom and a convenient bath-and-a-half setup, perfect for everyday comfort.
- Fully equipped guest house with its own bedroom and full bathroom—ideal for visitors, extended family, or rental potential.
- A welcoming foyer that sets the tone with charm and thoughtful design.
- Dedicated study or library offering a quiet retreat for reading, working, or relaxing.
- A peaceful rear porch that extends your living space outdoors and invites you to unwind.
- Covered breezeway that connects the main home to the guest house, offering shade, airflow, and architectural character.
- The guest house includes a cozy office nook—perfect for working remotely or providing guests with their own workspace.
- A practical 441 sq ft garage offering room for parking, storage, and everyday convenience.
What's included in SV-30013:
Cover Page
Floor Plan
Roof Plan
Front And Rear Elevation
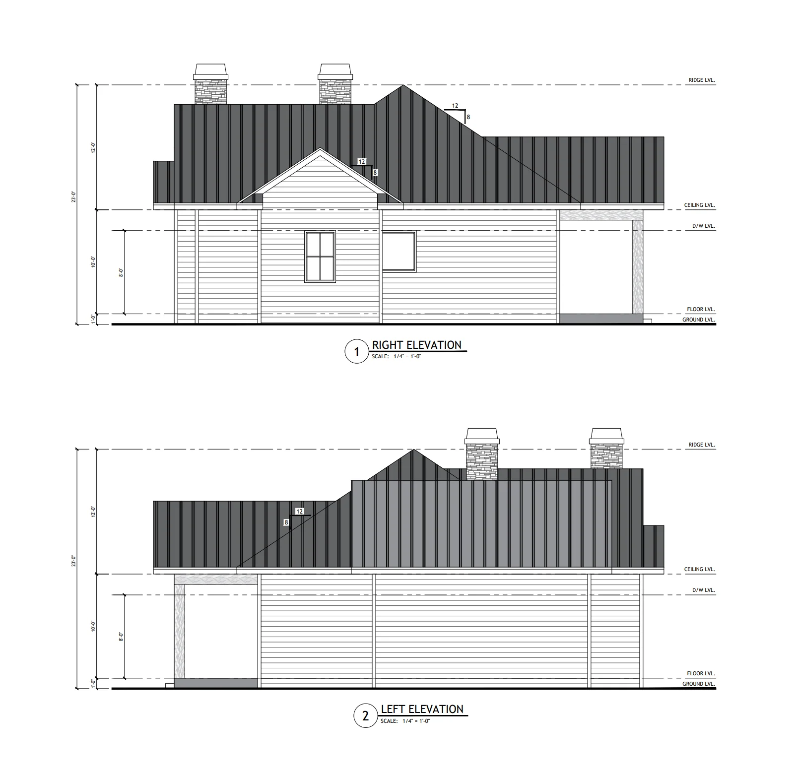
Right And Left Elevation
Electrical Plan
Plumbing Plan
HVAC Plan
Foundation Plan
Foundation Detail
Interior Bearing Footing
C-Typical Column Detail
Wall Section
For more barndominium floor plans, check out our complete collection of 2-bedroom barndominium floor plans.
Need to make changes? Submit a modification request using the button that says Modify This Plan. We will get you a free price quote within 72 hours.
Original: $849.99
-70%$849.99
$255.00Product Information
Product Information
Shipping & Returns
Shipping & Returns
Description
SV-30013 Shelby Custom Home Plan
About this custom home plan:
- 1850 Heated Square Feet
- 2 Bedrooms
- 2.1 Bathrooms
- Single Story
- Open concept
- Foyer
- Study/Library
- Rear Porch
- Breezeway
- Guest House with Office Nook
- 441 Sq Ft Garage
- A beautifully planned 1,850 sq ft layout split between a main home and a private guest house for flexible, comfortable living.
- The main home features a spacious bedroom and a convenient bath-and-a-half setup, perfect for everyday comfort.
- Fully equipped guest house with its own bedroom and full bathroom—ideal for visitors, extended family, or rental potential.
- A welcoming foyer that sets the tone with charm and thoughtful design.
- Dedicated study or library offering a quiet retreat for reading, working, or relaxing.
- A peaceful rear porch that extends your living space outdoors and invites you to unwind.
- Covered breezeway that connects the main home to the guest house, offering shade, airflow, and architectural character.
- The guest house includes a cozy office nook—perfect for working remotely or providing guests with their own workspace.
- A practical 441 sq ft garage offering room for parking, storage, and everyday convenience.
What's included in SV-30013:
Cover Page
Floor Plan
Roof Plan
Front And Rear Elevation
Right And Left Elevation
Electrical Plan
Plumbing Plan
HVAC Plan
Foundation Plan
Foundation Detail
Interior Bearing Footing
C-Typical Column Detail
Wall Section
For more barndominium floor plans, check out our complete collection of 2-bedroom barndominium floor plans.
Need to make changes? Submit a modification request using the button that says Modify This Plan. We will get you a free price quote within 72 hours.





















