































RP-10007 Beaumont Barndominium House Plan
RP-10007 Beaumont Barndominium House Plan
About this barndominium house plan:
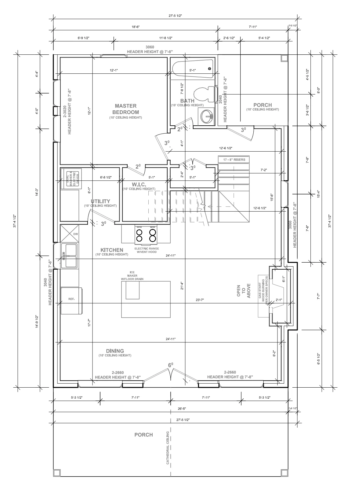
- 1,482 Heated Sq Ft
- 2 Bedrooms
- 2 Bathrooms
- Two-Story
- Open concept
- Loft
- Utility room
- Front & rear porch
- A thoughtfully designed layout offering 1,482 square feet of conditioned space—ideal for relaxed living, efficient flow, and everyday comfort.
- Two well-proportioned bedrooms and two full baths provide just the right balance of privacy and practicality—perfect for couples, guests, or downsized living.
- An airy upper-level loft adds a layer of flexibility—whether it becomes a reading nook, hobby space, or quiet retreat, it’s yours to define.
- A dedicated space for laundry and essentials—keeping the rest of the home clutter-free and routines running smoothly.
- Two porches extend the living experience outdoors. The front welcomes with charm, while the rear invites slow mornings, evening breezes, and relaxed entertaining.
What's included in RP-10007:
Four Elevations - Front, Back, Left Side, Right Side
Roof Plan
Overlay Layout
First Floor Plan
Second Floor Plan
First Floor Electrical Plan
Second Floor Electrical Plan
Typical Wall Section
Partition Details
For more barndominium floor plans, check out our complete collection of 2-bedroom barndominium floor plans.
Need to make changes? Submit a modification request using the button that says Modify This Plan . We will get you a free price quote within 72 hours
Original: $849.99
-70%$849.99
$255.00Product Information
Product Information
Shipping & Returns
Shipping & Returns
Description
RP-10007 Beaumont Barndominium House Plan
About this barndominium house plan:
- 1,482 Heated Sq Ft
- 2 Bedrooms
- 2 Bathrooms
- Two-Story
- Open concept
- Loft
- Utility room
- Front & rear porch
- A thoughtfully designed layout offering 1,482 square feet of conditioned space—ideal for relaxed living, efficient flow, and everyday comfort.
- Two well-proportioned bedrooms and two full baths provide just the right balance of privacy and practicality—perfect for couples, guests, or downsized living.
- An airy upper-level loft adds a layer of flexibility—whether it becomes a reading nook, hobby space, or quiet retreat, it’s yours to define.
- A dedicated space for laundry and essentials—keeping the rest of the home clutter-free and routines running smoothly.
- Two porches extend the living experience outdoors. The front welcomes with charm, while the rear invites slow mornings, evening breezes, and relaxed entertaining.
What's included in RP-10007:
Four Elevations - Front, Back, Left Side, Right Side
Roof Plan
Overlay Layout
First Floor Plan
Second Floor Plan
First Floor Electrical Plan
Second Floor Electrical Plan
Typical Wall Section
Partition Details
For more barndominium floor plans, check out our complete collection of 2-bedroom barndominium floor plans.
Need to make changes? Submit a modification request using the button that says Modify This Plan . We will get you a free price quote within 72 hours























