








































RP-10005 Hopkins Barndominium House Plan
RP-10005 Hopkins Barndominium House Plan
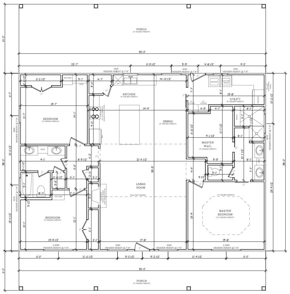
About this barndominium house plan:
- 1,800 Heated Sq Ft
- 36x50 Living space dimension
- 3 Bedrooms
- 2 Bathrooms
- Single Story
- Open concept
- Utility room
- Front & rear porch
- With 1,800 heated square feet, you have the room to live, grow, and create lasting memories. It’s the perfect size for a family home, offering a blend of cozy nooks and open, airy spaces.
- Imagine the possibilities with a remarkable 36'x50' living area! This expansive footprint provides a truly blank canvas for your design dreams. This generous dimension allows for a life without limits.
- Find your personal sanctuary in one of three inviting bedrooms. Each room is designed to be a peaceful retreat, offering a comfortable space for rest, relaxation, or productive work.
- Enjoy the convenience and luxury of two full bathrooms. No more waiting in line! One can serve as a tranquil private escape, while the second is perfect for guests and daily family routines. These well-appointed spaces combine style and functionality, making mornings and evenings effortless.
- Keep your home organized and clutter-free with a dedicated utility room. This practical space is a powerhouse of efficiency, offering a convenient spot for laundry, storage, and household tasks.
What's included in RP-10005:
Cover Page
Floor Plan
Roof Plan
Elevations
Electrical Plan
Plumbing Plan
HVAC Plan
Roof Framing Plan
Foundation Plan
Foundation Detail
Interior Bearing Footing
C-Typical Column Detail
Wall Section
For more barndominium floor plans, check out our complete collection of 3-bedroom barndominium floor plans.
Need to make changes? Submit a modification request using the button that says Modify This Plan . We will get you a free price quote within 72 hours
Original: $849.99
-70%$849.99
$255.00Product Information
Product Information
Shipping & Returns
Shipping & Returns
Description
RP-10005 Hopkins Barndominium House Plan
About this barndominium house plan:
- 1,800 Heated Sq Ft
- 36x50 Living space dimension
- 3 Bedrooms
- 2 Bathrooms
- Single Story
- Open concept
- Utility room
- Front & rear porch
- With 1,800 heated square feet, you have the room to live, grow, and create lasting memories. It’s the perfect size for a family home, offering a blend of cozy nooks and open, airy spaces.
- Imagine the possibilities with a remarkable 36'x50' living area! This expansive footprint provides a truly blank canvas for your design dreams. This generous dimension allows for a life without limits.
- Find your personal sanctuary in one of three inviting bedrooms. Each room is designed to be a peaceful retreat, offering a comfortable space for rest, relaxation, or productive work.
- Enjoy the convenience and luxury of two full bathrooms. No more waiting in line! One can serve as a tranquil private escape, while the second is perfect for guests and daily family routines. These well-appointed spaces combine style and functionality, making mornings and evenings effortless.
- Keep your home organized and clutter-free with a dedicated utility room. This practical space is a powerhouse of efficiency, offering a convenient spot for laundry, storage, and household tasks.
What's included in RP-10005:
Cover Page
Floor Plan
Roof Plan
Elevations
Electrical Plan
Plumbing Plan
HVAC Plan
Roof Framing Plan
Foundation Plan
Foundation Detail
Interior Bearing Footing
C-Typical Column Detail
Wall Section
For more barndominium floor plans, check out our complete collection of 3-bedroom barndominium floor plans.
Need to make changes? Submit a modification request using the button that says Modify This Plan . We will get you a free price quote within 72 hours























