











PL-60904 Paxton Barndominium House Plan
PL-60904 Paxton Barndominium House Plan
- 1758 Heated square feet
- 34x50 living space dimension
- 1079 square feet attached garage
- 3 bedrooms
- 2 bathrooms
- 1 Story
- Utility Room
- Open Concept
- Unfinished basement
- Porch
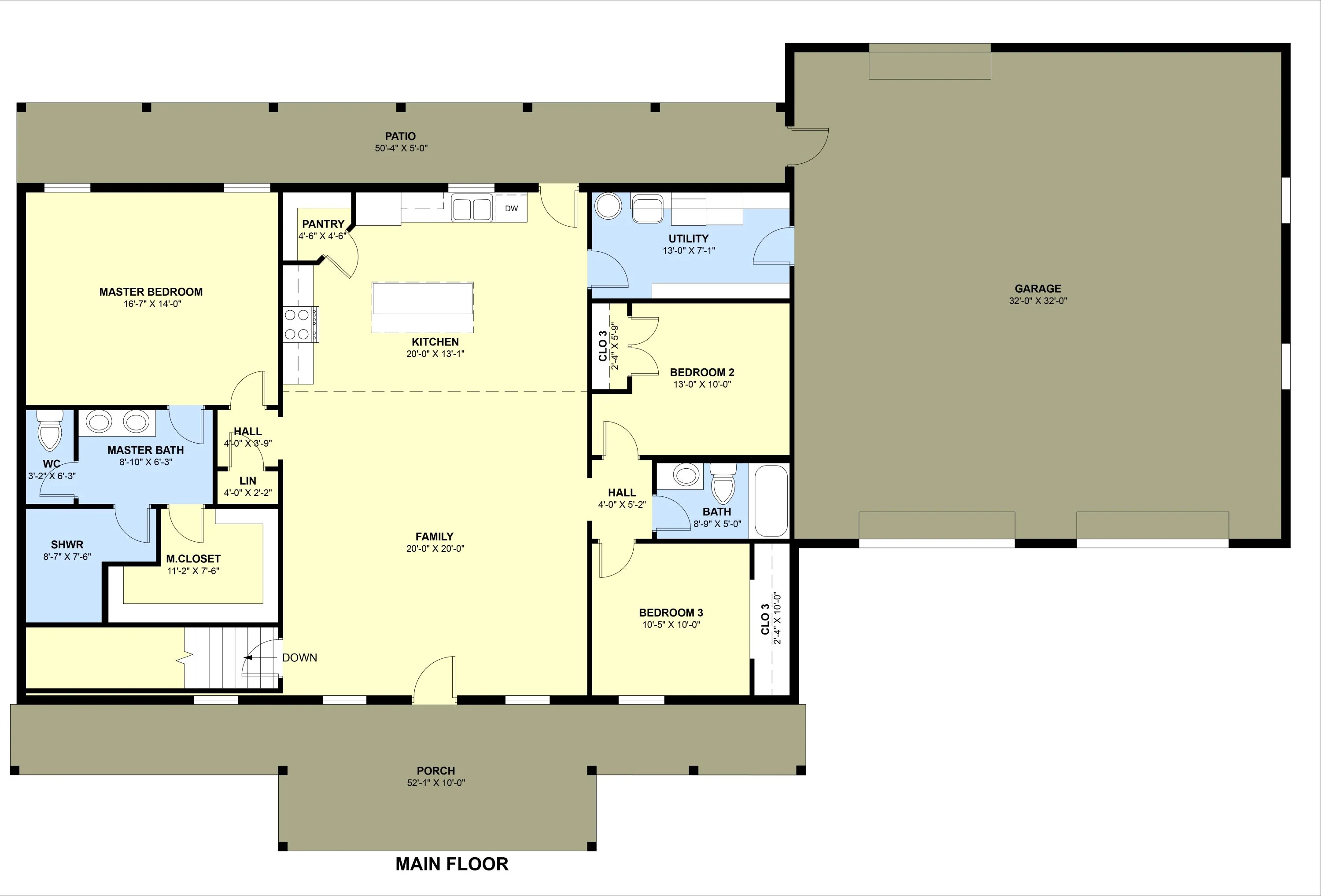
- The Paxton barndominium house plan is 1758 heated square feet and features 3 bedrooms and 2 bathrooms with an attached 1079 square foot garage.
- This house plan has a nice open floor plan that makes the main living area feel large and spacious.
- The kitchen has a nice size island and a corner pantry making it convenient for storage.
- The master bedroom has an ensuite bathroom a large walk-in shower and a master closet to keep the room looking neat and orderly.
- On the other side of the home, you will find 2 spacious secondary bedrooms both with nice-sized closers. Both these bedrooms share a bathroom in the hall between them.
- The utility room is located just off the garage making it convenient for washing up after a long day in the yard or carrying in groceries.
- The unfinished basement offers unlimited possibilities for your family to enjoy.
- With a front porch and back patio, there is plenty of room to really enjoy everything the outdoors has to offer.
What's included in PL-60904:
Elevations - Front, Back, Left Side, Right Side
Detailed Floor Plan
Basement Plan
Basement Electrical Plan
Main Floor Electrical Plan
Ceiling Joist Plan
Main Floor Flooring Plan
Main Floor Mechanical Plan
Roof Plan
Foundation Plan
For more barndominium floor plans, check out our complete collection of 3 bedroom barndominium floor plans.
Need to make changes? Submit a modification request using the button that says Modify This Plan . We will get you a free price quote within 72 hours
Original: $849.99
-70%$849.99
$255.00Product Information
Product Information
Shipping & Returns
Shipping & Returns
Description
PL-60904 Paxton Barndominium House Plan
- 1758 Heated square feet
- 34x50 living space dimension
- 1079 square feet attached garage
- 3 bedrooms
- 2 bathrooms
- 1 Story
- Utility Room
- Open Concept
- Unfinished basement
- Porch
- The Paxton barndominium house plan is 1758 heated square feet and features 3 bedrooms and 2 bathrooms with an attached 1079 square foot garage.
- This house plan has a nice open floor plan that makes the main living area feel large and spacious.
- The kitchen has a nice size island and a corner pantry making it convenient for storage.
- The master bedroom has an ensuite bathroom a large walk-in shower and a master closet to keep the room looking neat and orderly.
- On the other side of the home, you will find 2 spacious secondary bedrooms both with nice-sized closers. Both these bedrooms share a bathroom in the hall between them.
- The utility room is located just off the garage making it convenient for washing up after a long day in the yard or carrying in groceries.
- The unfinished basement offers unlimited possibilities for your family to enjoy.
- With a front porch and back patio, there is plenty of room to really enjoy everything the outdoors has to offer.
What's included in PL-60904:
Elevations - Front, Back, Left Side, Right Side
Detailed Floor Plan
Basement Plan
Basement Electrical Plan
Main Floor Electrical Plan
Ceiling Joist Plan
Main Floor Flooring Plan
Main Floor Mechanical Plan
Roof Plan
Foundation Plan
For more barndominium floor plans, check out our complete collection of 3 bedroom barndominium floor plans.
Need to make changes? Submit a modification request using the button that says Modify This Plan . We will get you a free price quote within 72 hours























