






CDD-4105 Cleveland Barndominium House Plan
CDD-4105 Cleveland Barndominium House Plan
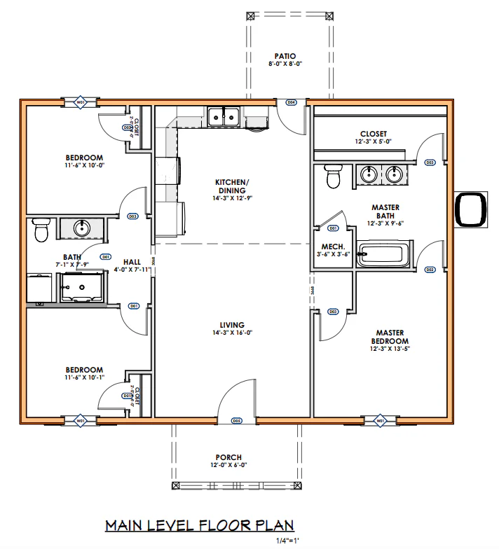
About this barndominium house plan:
- 1200 Heated square feet
- 30x40 living space dimension
- 3 Bedrooms
- 2 Bathrooms
- Single story
- Mechanical closet
- Front porch
- Patio
- Smartly scaled at 1,200 heated square feet, this home delivers comfort without excess. Every inch is thoughtfully designed to maximize livability, making it ideal for those who value simplicity, warmth, and ease.
- With a 30x40 footprint, this home balances efficiency and openness. The layout encourages natural flow between rooms while maintaining cozy zones for rest and gathering. It’s a smart use of space that feels both intimate and functional.
- Three inviting bedrooms provide space for rest, creativity, or connection. Whether you're welcoming guests, working from home, or growing a family, these rooms adapt to your evolving lifestyle.
- Two full baths offer convenience and comfort for everyday living. With modern finishes and smart placement, they support both privacy and hospitality.
- Single-level living means no stairs, no hassle—just seamless movement from room to room. It’s a layout that supports accessibility, aging in place, and relaxed daily rhythms.
- A discreet mechanical closet keeps systems tucked away and organized, enhancing both aesthetics and efficiency. It’s a behind-the-scenes feature that makes a big difference in long-term comfort.
- The welcoming front porch sets the tone for charm and connection. Whether you're waving to neighbors or enjoying a quiet morning coffee, it’s a space that invites warmth and community.
- Step outside to a private patio that’s perfect for alfresco dining, weekend lounging, or evening stargazing. It’s an extension of your living space that brings the outdoors in—effortlessly.
What's included in CDD-4105:
Project Overview
Main Level Floor Plan
Main Level Dimensioned
Elevations
Interior Renderings
Exterior Renderings
Foundation Plan
Main Level Framing
Roof Plan
Schedules
Electrical Plan
For more barndominium floor plans, check out our complete collection of 3-bedroom barndominium floor plans.
Need to make changes? Submit a modification request using the button that says Modify This Plan . We will get you a free price quote within 72 hours
Original: $849.99
-70%$849.99
$255.00Product Information
Product Information
Shipping & Returns
Shipping & Returns
Description
CDD-4105 Cleveland Barndominium House Plan
About this barndominium house plan:
- 1200 Heated square feet
- 30x40 living space dimension
- 3 Bedrooms
- 2 Bathrooms
- Single story
- Mechanical closet
- Front porch
- Patio
- Smartly scaled at 1,200 heated square feet, this home delivers comfort without excess. Every inch is thoughtfully designed to maximize livability, making it ideal for those who value simplicity, warmth, and ease.
- With a 30x40 footprint, this home balances efficiency and openness. The layout encourages natural flow between rooms while maintaining cozy zones for rest and gathering. It’s a smart use of space that feels both intimate and functional.
- Three inviting bedrooms provide space for rest, creativity, or connection. Whether you're welcoming guests, working from home, or growing a family, these rooms adapt to your evolving lifestyle.
- Two full baths offer convenience and comfort for everyday living. With modern finishes and smart placement, they support both privacy and hospitality.
- Single-level living means no stairs, no hassle—just seamless movement from room to room. It’s a layout that supports accessibility, aging in place, and relaxed daily rhythms.
- A discreet mechanical closet keeps systems tucked away and organized, enhancing both aesthetics and efficiency. It’s a behind-the-scenes feature that makes a big difference in long-term comfort.
- The welcoming front porch sets the tone for charm and connection. Whether you're waving to neighbors or enjoying a quiet morning coffee, it’s a space that invites warmth and community.
- Step outside to a private patio that’s perfect for alfresco dining, weekend lounging, or evening stargazing. It’s an extension of your living space that brings the outdoors in—effortlessly.
What's included in CDD-4105:
Project Overview
Main Level Floor Plan
Main Level Dimensioned
Elevations
Interior Renderings
Exterior Renderings
Foundation Plan
Main Level Framing
Roof Plan
Schedules
Electrical Plan
For more barndominium floor plans, check out our complete collection of 3-bedroom barndominium floor plans.
Need to make changes? Submit a modification request using the button that says Modify This Plan . We will get you a free price quote within 72 hours















