













BG-20027 Hollis Barndominium House Plan
BG-20027 Hollis Barndominium House Plan
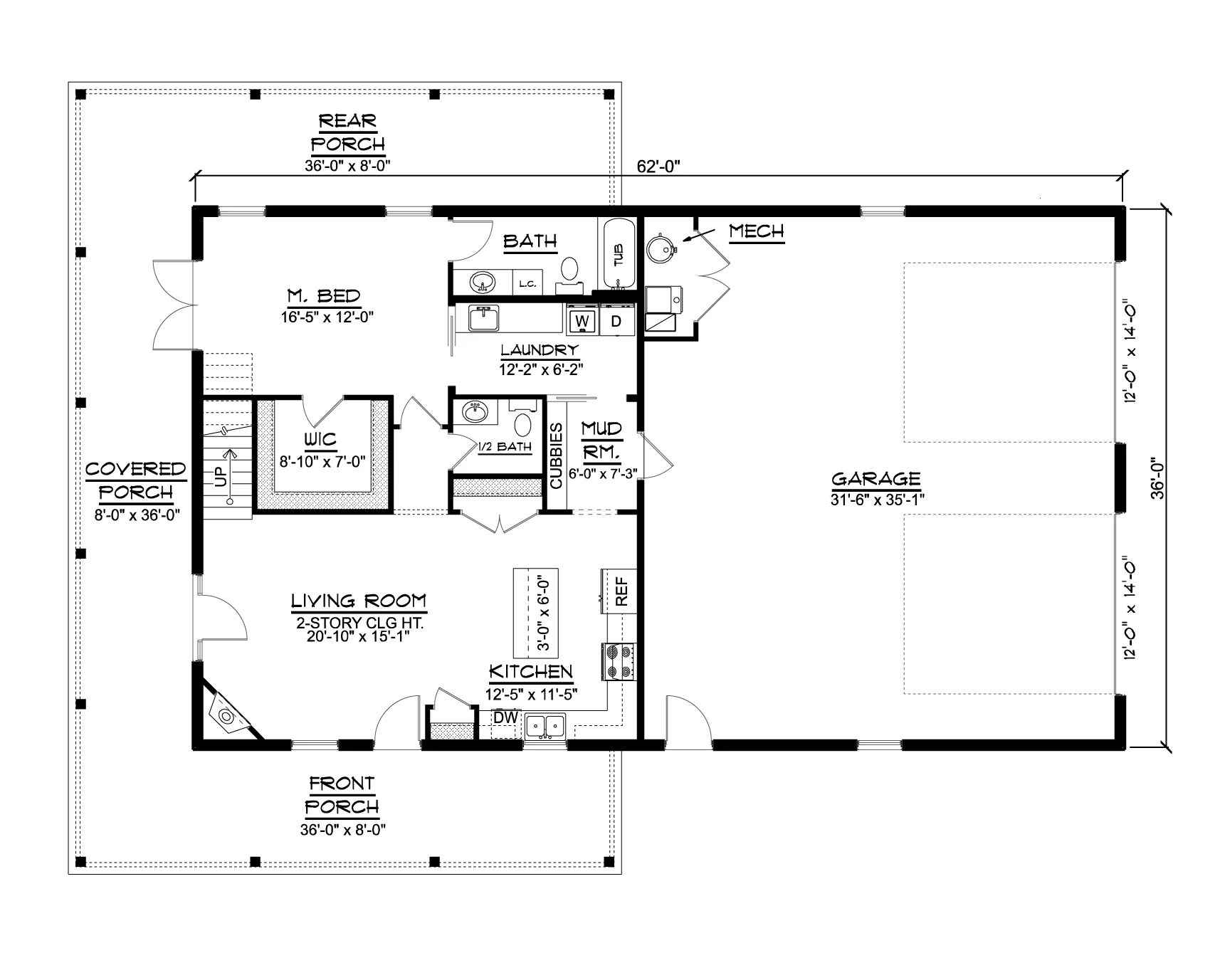
About this barndominium house plan:
- 1649 Heated Sq Ft
- 30x36 Living space dimension
- 2 Bedrooms
- 2.1 Bathrooms
- Two story
- Open concept
- Wraparound porch
- Mechanical closet
- 1152 Sq Ft Garage
- Enjoy 1,649 square feet of climate-controlled comfort, thoughtfully designed for everyday living and effortless style.
- The expansive 30x36 living area offers generous proportions for entertaining, relaxing, and customizing your lifestyle.
- Two bedrooms, including a main-floor master suite, provide privacy and flexibility across both levels.
- With two full baths and a convenient powder room, this layout ensures smooth mornings and easy hosting.
- A striking two-story design adds vertical elegance and smart separation of living spaces.
- A wraparound porch surrounds the home with charm and shaded outdoor living from every angle.
- A discreet mechanical closet in the garage keeps systems organized and out of sight for a clean, functional space.
- The 1,152-square-foot garage offers ample room for vehicles, storage, and workshop potential—all under one roof.
What's included in BG-20027:
Cover Sheet
Four Elevations (Front, Back, Left Side, Right Side)
Roof Plan
Dimensioned Floor Plan
Foundation Plan
Wall Sections
Electrical Plans
For more barndominium floor plans, check out our complete collection of 2-bedroom barndominium floor plans.
Need to make changes? Submit a modification request using the button that says Modify This Plan . We will get you a free price quote within 72 hours
Original: $1,250.00
-70%$1,250.00
$375.00Product Information
Product Information
Shipping & Returns
Shipping & Returns
Description
BG-20027 Hollis Barndominium House Plan
About this barndominium house plan:
- 1649 Heated Sq Ft
- 30x36 Living space dimension
- 2 Bedrooms
- 2.1 Bathrooms
- Two story
- Open concept
- Wraparound porch
- Mechanical closet
- 1152 Sq Ft Garage
- Enjoy 1,649 square feet of climate-controlled comfort, thoughtfully designed for everyday living and effortless style.
- The expansive 30x36 living area offers generous proportions for entertaining, relaxing, and customizing your lifestyle.
- Two bedrooms, including a main-floor master suite, provide privacy and flexibility across both levels.
- With two full baths and a convenient powder room, this layout ensures smooth mornings and easy hosting.
- A striking two-story design adds vertical elegance and smart separation of living spaces.
- A wraparound porch surrounds the home with charm and shaded outdoor living from every angle.
- A discreet mechanical closet in the garage keeps systems organized and out of sight for a clean, functional space.
- The 1,152-square-foot garage offers ample room for vehicles, storage, and workshop potential—all under one roof.
What's included in BG-20027:
Cover Sheet
Four Elevations (Front, Back, Left Side, Right Side)
Roof Plan
Dimensioned Floor Plan
Foundation Plan
Wall Sections
Electrical Plans
For more barndominium floor plans, check out our complete collection of 2-bedroom barndominium floor plans.
Need to make changes? Submit a modification request using the button that says Modify This Plan . We will get you a free price quote within 72 hours























