





















BG-20020 Oakmont Barndominium House Plan
BG-20020 Oakmont Barndominium House Plan
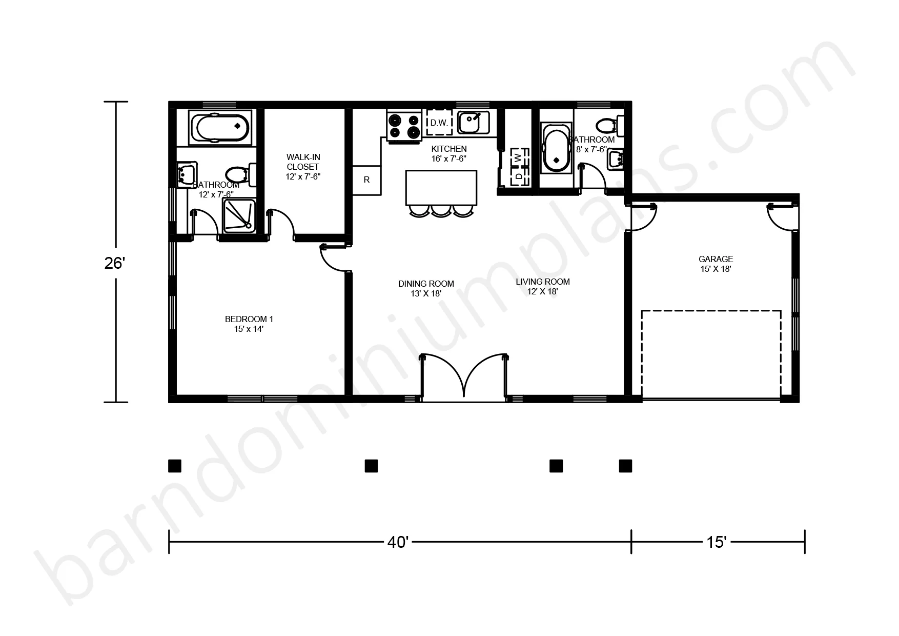
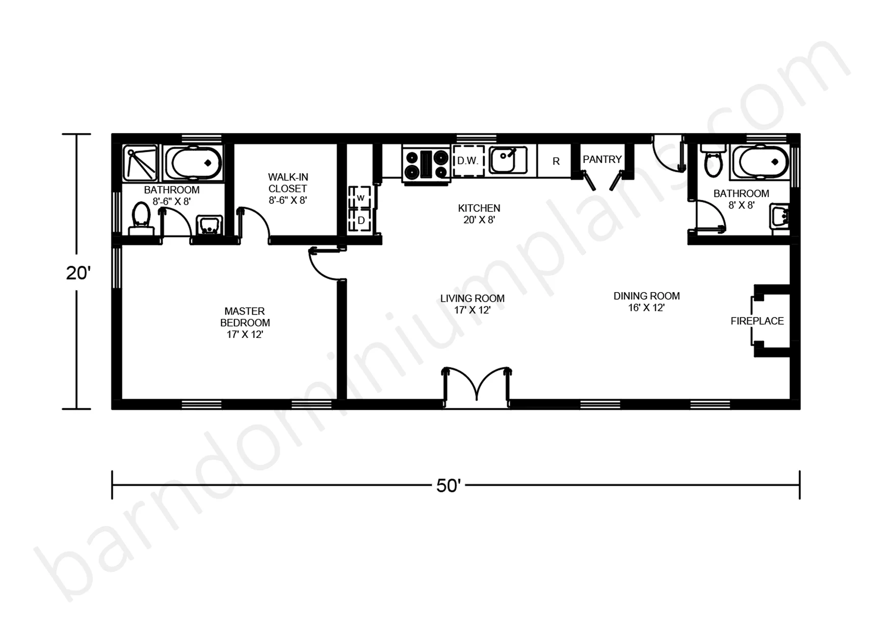
About this barndominium house plan:
- 2708 Heated sq ft
- 3750 sq ft 3 Car garage
- 1 bedroom
- 1.2 bathrooms
- Two Story
- Second Floor Rec area
- Open Concept
- Mudroom
- Covered porch
- Ample space for living and entertaining 2708 Heated sq ft without the wasted square footage with room to grow, create, and relax in a home that feels just right.
- This isn't just a garage; it's a workshop, a showroom, and a storage solution all in one. Imagine a hobbyist's haven, or the ultimate storage for all your gear—this is the garage that makes it possible.
- A minimalist's dream with one bedroom offering an intimate and highly functional space designed for ultimate comfort. Enjoy the luxury of a simplified, yet incredibly intentional living experience.
- The perfect blend of a full bath for your private use and a powder room for guests. Accommodate visitors with ease and style without compromising your personal space.
- Experience the unique charm and functional separation of a home with two distinct levels. Spread out and define different zones for rest and play, offering a sense of privacy and purpose.
- A dedicated upstairs haven for movies, games, and all your recreational pursuits.
- Seamless transitions between living, dining, and kitchen areas create an airy and inviting atmosphere.
- The mudroom is the perfect transition zone for keeping dirt and clutter out of the main living areas. A smart and stylish space designed to organize life's comings and goings, from boots to backpacks.
- A sheltered space for enjoying your morning coffee or unwinding in the evening, rain or shine. Extend your living space and connect with nature from the comfort of your covered retreat.
What's included in BG-20019:
Cover Sheet
Four Elevations (Front, Back, Left Side, Right Side)
Roof Plan
Dimensioned Floor Plan
Foundation Plan
Wall Sections
Electrical Plans
For more barndominium floor plans, check out our complete collection of 1 bedroom barndominum floor plans.
Need to make changes? Submit a modification request using the button that says Modify This Plan . We will get you a free price quote within 72 hours.
Product Information
Product Information
Shipping & Returns
Shipping & Returns
Description
BG-20020 Oakmont Barndominium House Plan
About this barndominium house plan:
- 2708 Heated sq ft
- 3750 sq ft 3 Car garage
- 1 bedroom
- 1.2 bathrooms
- Two Story
- Second Floor Rec area
- Open Concept
- Mudroom
- Covered porch
- Ample space for living and entertaining 2708 Heated sq ft without the wasted square footage with room to grow, create, and relax in a home that feels just right.
- This isn't just a garage; it's a workshop, a showroom, and a storage solution all in one. Imagine a hobbyist's haven, or the ultimate storage for all your gear—this is the garage that makes it possible.
- A minimalist's dream with one bedroom offering an intimate and highly functional space designed for ultimate comfort. Enjoy the luxury of a simplified, yet incredibly intentional living experience.
- The perfect blend of a full bath for your private use and a powder room for guests. Accommodate visitors with ease and style without compromising your personal space.
- Experience the unique charm and functional separation of a home with two distinct levels. Spread out and define different zones for rest and play, offering a sense of privacy and purpose.
- A dedicated upstairs haven for movies, games, and all your recreational pursuits.
- Seamless transitions between living, dining, and kitchen areas create an airy and inviting atmosphere.
- The mudroom is the perfect transition zone for keeping dirt and clutter out of the main living areas. A smart and stylish space designed to organize life's comings and goings, from boots to backpacks.
- A sheltered space for enjoying your morning coffee or unwinding in the evening, rain or shine. Extend your living space and connect with nature from the comfort of your covered retreat.
What's included in BG-20019:
Cover Sheet
Four Elevations (Front, Back, Left Side, Right Side)
Roof Plan
Dimensioned Floor Plan
Foundation Plan
Wall Sections
Electrical Plans
For more barndominium floor plans, check out our complete collection of 1 bedroom barndominum floor plans.
Need to make changes? Submit a modification request using the button that says Modify This Plan . We will get you a free price quote within 72 hours.























